ArchitectuurstudioIvo van Capelleveen |
![]() |
Projecten | Meer over | ![]() |
|
Hier vind u een aantal projecten die ik voor en soms samen met de opdrachtgevers heb ontworpen en die zijn gerealiseerd. |
Zonnehuis in Rotterdam, NL |
![]() |
![]() |
![]() |
De klant heeft in het centrum van Rotterdam een huis laten bouwen waarvan het ontwerp van de gevel al vaststond, maar waarvan de interieurindeling nog moest worden bepaald. De wens was vooral veel natuurlijk licht in huis. Echter, het huis is vrij smal en heeft een ongunstige lichtinval. |
![]() |
Samen hebben we geschetst en met behulp van een Revit (BIM) 3D-model konden we binnen één middag de basis van het ontwerp vaststellen. Een lichtstraat op het dak zorgt voor veel natuurlijk licht in het midden van het huis. Onder de lichtstraat bevindt zich een vide, waardoor alle kamers van twee kanten worden verlicht. In het atrium op de eerste verdieping is een glazen vloer geplaatst, waardoor de zon ook het midden van de begane grond verlicht. De trappen slingeren door het huis, wat zorgt voor een interessante ervaring. Het resultaat is geslaagd. huis is mooi en rustig verlicht. |
![]() |
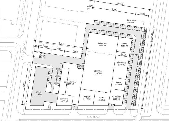
Fabriek met Kantoor in Houten, NL |
![]() |
![]() |
Samen met de klant heb ik deze fabriek met kantoor ontworpen.
Zowel de plattegrond als de gevel zijn ontworpen met de mogelijkheid om het gebouw in twee of drie delen te verdelen, zodat toekomstige gebruikers veel vrijheid hebben om de indeling aan te passen, een eigen prominente entee te maken en zich met een naam en logo op de gevel te kunnen profileren.
|
![]() |
![]() |
![]() |
![]() |
![]() |
![]() |
![]() |
Villa in Manilla, Filipijnen |
![]() |
De bewoners van het huis ware gesharmeerd van het 'machine achtige' ontwerp van de bovenstaande fabriek en wilde dit combineren met de vriendelijke villa's van Richard Neutra. De detaillering en bestektekeningen zijn verzorgd door een locaal bureau. |
![]() |
![]() |
![]() |
![]() |
![]() |
![]() |
All rights reserved |